联系方式


【项目基础信息】
项目占地:约4.3万㎡
总建面:14.8万㎡
容积率:2.5
绿化率:30%
别墅总户数:68户
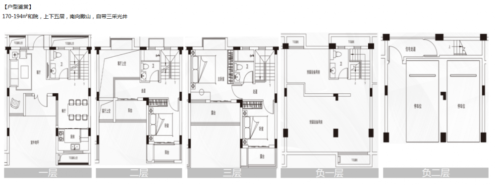
产品面积:约170-190㎡和院
层数:上下共五层
别墅类型:三联排、四联排
物业:中熙物业
【墅墅皆有院,超20种院子生活】
最大约243㎡院子
前庭后院,能够创造超20种别墅院子生活
桥头绝无仅有的大院子别墅
【共享东部首个3.5万㎡中央公园式园林】
告别传统别墅无社交化
东部首个3.5万㎡中央公园式园林,更多社交、更全生活体验
泳池、儿童乐园、城市会客厅等.
【全人车分流,把更多生活留给院子】
告别传统别墅人车不分流缺陷,打造全人车分流社区,车行人行全分离
改变传统别墅利用花园停车的痛点,让花园利用价值更高
【阳光富氧地下室】
双采光井设计,引入自然光源
负一层自带产权,更节省搭板成本
负二层,赠送2个车位