欢迎

【增城开发区国际智造产业基地】

更新时间: 2025.03.12
<
>
5000元/㎡
  • 110000㎡
    总面积
  • 标准厂房
    厂房结构
  • 新厂
    新旧厂
  • 开发园区
    类型
  • 其他
    级别
产  业
文化创意 物流、 电子商务、 软件、 电子信息、 中小企业创业园、
地  址
增城开发区核心区,香山大道以东

瑜家 (经纪人)
400-1655-919
扫码 微信咨询

园区概况

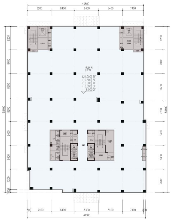
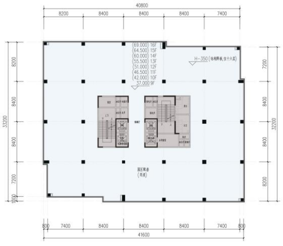
项目位于增城开发区核心区,香山大道以东,规划建面约11万㎡,容积率2.86。

项目可租可售,规划建设两栋高标厂房,一栋综合楼。

产品参数

【区位交通】地处广州东部枢纽中心,周边3公里范围配套丰富,交通便利


【产品面积】

1号厂房共7层,单层面积约4000-6000㎡;

2号厂房共8层,单层面积约4000㎡;

3号综合楼共16层,1-7层为研发厂房,单层建筑面积约2400㎡,8-16层为高品质产业研发配套办公产品,单层建筑面积约1400㎡。

【层 高】厂房首层12m,二层8m,标准层6.5m

【柱 间 距】9m*9m

【承 重】厂房首层3T/㎡,二层2T/㎡,标准层1T/㎡

【电 梯】

1号厂房配有6-8台3T货梯(其中,1-2层有8台3T货梯)、2台1350kG客梯

2号厂房配有6台3T货梯、2台1350kG客梯

3号综合楼1-7层配有2台3T货梯、4台1350kG客梯,8-16层配有4台1350kG客梯

【地下车库】3号综合楼配有地下车库,约400个地下停车位

【园区环境】楼栋设计打造天际轮廓线,并设有格木花园,园林景观佳


【周边配套】周边拥有完善的幼儿园、小学、国际化外语学校,临近南方医院、永旺梦乐城、新塘万达广场,北望南香山森林公园


消防防护:有

厂房电梯:有

厂房食堂:有

无尘车间:有

Copyright ©2025 瑜家置地(广东)有限公司 版权所有 粤ICP备2025378161号
地址:东莞市横沥镇中山东路罗马景苑3栋118室   电话:400-1655-919
技术支持:汇卓网络

联系方式

400-1655-919

微信公众号

邮箱